Дом в Хомстед, Флорида 5 спален, 232.63м2 № 1951796
2

ID1951796
$ 550 000
- EUR €
- USD $
- RUB ₽
- GBP £
MLS #: A11899245
Написать продавцу
ГородХомстед
Адрес148 NE 24th Ave, Homestead FL 33033
ТипДом
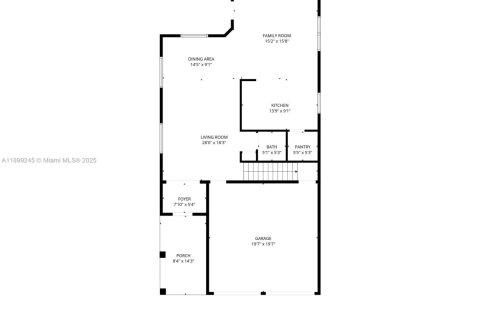
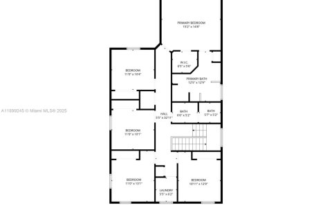
Спален5
Площадь232.63 м²
- м²
- фут²
Дата сдачиIV квартал, 2018
Парковочных мест2
полная стоимость
- полная стоимость
- цена за м²
$ 550 000
- EUR €
- USD $
- RUB ₽
- GBP £
Похожие проекты
-
Комнат: 8Спален: 5Ванных: 4Площадь: 232.63 м²
1820 SUMMER DRIVE -
Комнат: 10Спален: 5Ванных: 2.5Площадь: 232.63 м²
1466 ROSETREE COURT -
Спален: 5Ванных: 3Площадь: 232.53 м²
449 JARAMA CIR, ST AUGUSTINE, FL 32084
Предложить свою цену



















