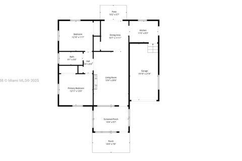
Дом в Корал-Гейблс, Флорида 2 спальни, 109.72м2 № 1956347

		ID1956347
        $ 995 000
- EUR €
- USD $
- RUB ₽
- GBP £
MLS #: A11904488
        	
            
        	
        	
			
        	Написать продавцу
    
ГородКорал-Гейблс
Адрес924 El Rado St, Coral Gables FL 33134
ТипДом
Спален2
	Площадь109.72 м²
- м²
- фут²
Дата сдачиIV квартал, 1950
Парковочных мест1
Тип парковкиОткрытая
	
        полная стоимость
        
    - полная стоимость
- цена за м²
        $ 995 000
        
- EUR €
- USD $
- RUB ₽
- GBP £
Предложить свою цену
			
		


























