Кондоминиум с 3 спальнями в Майами, Флорида № 1969885

Кондоминиум с 3 спальнями в Майами, Флорида № 1969885
ID1969885 $ 12 100
  • EUR €
  • USD $
  • RUB ₽
  • GBP £
/ в месяц
1969885
MLS #: A11914183
Написать продавцу
Получить ответ в
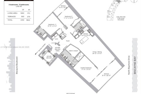
ГородМайами
Адрес2020 N Bayshore Dr # 803, Miami FL 33137
ТипКондоминиум
Спален3
Площадь158.68 м²
  • м²
  • фут²
Дата сдачиIV квартал, 2010
Парковочных мест1
полная стоимость
  • полная стоимость
  • цена за м²
$ 12 100
  • EUR €
  • USD $
  • RUB ₽
  • GBP £
Похожие проекты