Commercial property in Hobe Sound, Florida 2 bedrooms, 82.13 sq.m. № 1180628
38

ID1180628
$ 2 800
- EUR €
- USD $
- RUB ₽
- GBP £
Property description
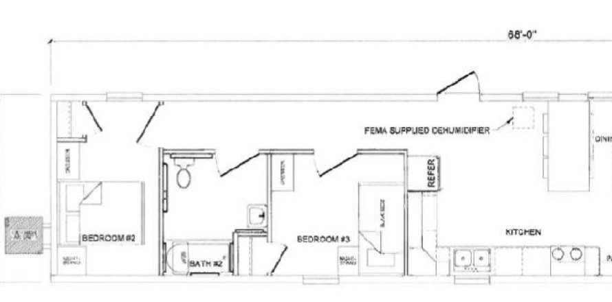
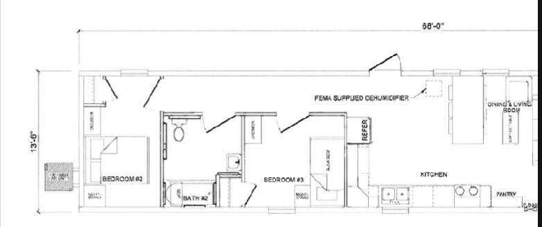
**3-Bedroom Container Home in Ridgewood**Discover this unique 3-bedroom, 2-bathroom container home in Ridgewood's all-age community. Enjoy plenty of parking and a modern floor plan (see attached). Move-in date is approximate - home has not yet been delivered.Apply via RentSpree; monthly income must be 3x rent. More photos coming soon!MLS #: R10988758
Contact the seller
CityHobe Sound
Address7480 SE Eagle Avenue
TypeCommercial property
Bedrooms2
Living space82.13 m²
- m²
- sq. ft
Completion dateIV quarter, 2010
Price
- Price
- per m²
$ 2 800
- EUR €
- USD $
- RUB ₽
- GBP £
Similar offers
-
Bedrooms: 2Bathrooms: 1Living space: 82.68 m²
1020 NW 5th Avenue 1 -
Bedrooms: 2Bathrooms: 1Living space: 83.15 m²
721 51st Street 723 -
Bedrooms: 2Bathrooms: 1Living space: 83.24 m²
353 Silver Beach Road -
Bedrooms: 2Bathrooms: 1Living space: 83.43 m²
1134 NE 16th Terrace




