House in Silver Springs Shores, Florida 3 bedrooms, 107.67 sq.m. № 1905650
50

ID1905650
$ 229 900
- EUR €
- USD $
- RUB ₽
- GBP £
Property description
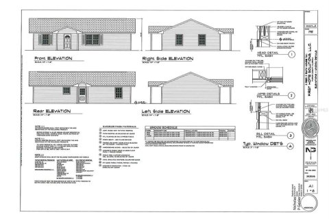
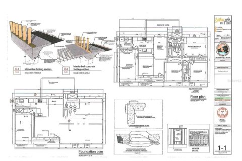
Pre-Construction. To be built. Pre-Construction, To Be Built. Tired of the congested city life? Then come see this cozy 3/2 Frame story book like home out in the country surrounded by the Ocala National Forest, 600 lakes, two rivers and no HOA! The builder will pay $5,000.00 of the buyers closing costs and pre-paids. The photo rendering is approximately and generally how the completed home will look minus shubberies. The home will be situated North and Soth. The front door and 5' x 10'.4" covered front porch will face west towards Ocala. The back door and 5' x 5'.2" back door will face east towards Daytona. The home will ve 1,159 sq ft living area heated and cooled. the total sq ft with covered porches will be 1,256 sq fto. The home will sit on a huge piece of property which is two unpaved lots totalling .60 of an acre . It is two ;75'x150' lots back to back (75'x300) total. This gives you plenty of land to add garages, carports and pole parns for all of your toys! The home itself is an open split bedroom floor plan with a living room//kitchen combination (all electric). Included is a range, refrigerator, range hood, dixhwasher, water heater and four ceiling fans. The ktichen enjoys a pantry and the master beroom a walk-in-closet. The home will have central A/C and Heat, built in pantry and a concrete driveway. This home will be pre-sold and buyers can move in at the certificate of occupancy. Truly a great property at a fair price of just $229,900! Hurry and be the first one to sign up! Home will be located in the Ocala National Forest which affords you almost a ½ million acres of Forest to roam, 600 lakes, 2 rivers, Juniper Springs, Silver Glen Springs, Salt Springs, Swimming, Skiing, Big BASS Fishing, Boating, Camping, Hiking, Horse back riding and some of the best ATV riding anywhere. Daytona Beach is just 1 hour away. Let the fun begin! You need it!
MLS #: OM709230
Contact the seller
CitySilver Springs Shores
AddressTBD SE 19TH STREET
TypeHouse
Bedrooms3
Living space107.67 m²
- m²
- sq. ft
Completion dateIV quarter, 2025
Price
- Price
- per m²
$ 229 900
- EUR €
- USD $
- RUB ₽
- GBP £
Similar offers
-
Rooms: 8Bedrooms: 3Bathrooms: 1Living space: 107.67 m²
451 ROGERS STREET -
Rooms: 3Bedrooms: 3Bathrooms: 2Living space: 107.67 m²
3069 SE 140TH PLACE -
Rooms: 3Bedrooms: 3Bathrooms: 1Living space: 107.67 m²
115 W ALSOBROOK STREET -
Rooms: 5Bedrooms: 3Bathrooms: 2Living space: 107.67 m²
511 KILIMANJARO DRIVE

































